Willa wiejska


Projekt Architektura mieszkaniowa Rok 2025/2026 Lokalizacja Przytoczna


Projekt osiedla mieszkaniowego w zabudowie bliźniaczej w Przytocznej stanowi propozycję nowoczesnego budownictwa społecznego, realizowanego w ramach programu Społecznej Inicjatywy Mieszkaniowej – Lubuski SIM. Inwestycja została zaprojektowana z myślą o rodzinach, seniorach i osobach o umiarkowanych dochodach, które poszukują komfortowych, funkcjonalnych i dostępnych cenowo mieszkań. Celem projektu było stworzenie osiedla, które łączy społeczny charakter z wysoką jakością architektury, oferując mieszkańcom przestrzeń godną, trwałą, która będzie jednocześnie wizytówką gminy Przytoczna.

Projekt wpisuje się w założenia współczesnego budownictwa społecznego, którego celem jest zapewnienie wszystkim mieszkańcom równego dostępu do bezpiecznego i komfortowego lokum. Realizacja w ramach Lubuskiego SIM stanowi przykład odpowiedzialnego podejścia do mieszkalnictwa – opartego na zrównoważonym rozwoju. Osiedle w Przytocznej ma być alternatywą dla rynku komercyjnego, oferując wysoką jakość użytkową i estetyczną przy zachowaniu racjonalnych kosztów utrzymania. Projekt ma pokazywać, że dobra architektura może być dostępna dla każdego.

Lokalizacja inwestycji w Przytocznej, w spokojnym otoczeniu o niskiej intensywności zabudowy, wpłynęła na potrzebę stworzenia kameralnego, harmonijnego założenia urbanistycznego. Projekt uwzględnia lokalny charakter miejscowości i tradycyjną zabudowę regionu, co pozwoliło uzyskać spójny, naturalnie wpisany w krajobraz zespół mieszkaniowy.

Koncepcja architektoniczna opiera się na idei współczesnego domu w krajobrazie wiejskim – prostego, funkcjonalnego i pełnego naturalnego światła. Bardzo ważne było dla nas zachowanie ludzkiej skali i przyjaznego charakteru. Przy projektowaniu najważniejszym aspektem było przede wszystkim dobro jego przyszłych mieszkańców. W centrum koncepcji znajduje się człowiek i jego codzienne potrzeby – przestrzeń do życia, odpoczynku i kontaktu z naturą. Dodatkowo całość zachowano w sielskim klimacie małej miejscowości.

Zastosowane rozwiązania materiałowe i konstrukcyjne podporządkowano zasadom trwałości, ekonomiczności i energooszczędności. Elewacje wykończono jasnym tynkiem i fragmentami cegły o naturalnym odcieniu, co nadaje budynkom subtelną fakturę i rustykalny charakter. Czerwona dachówka ceramiczna i drewniana stolarka okienna nawiązują do tradycyjnego budownictwa regionu, wprowadzając ciepło i autentyczność. Budynki zaprojektowano w technologii murowanej z zastosowaniem nowoczesnych rozwiązań energooszczędnych, takich jak rekuperacja, dobra izolacyjność termiczna czy możliwość montażu paneli fotowoltaicznych. Dzięki temu koszty eksploatacji są niskie, co jest kluczowe w przypadku budownictwa społecznego.

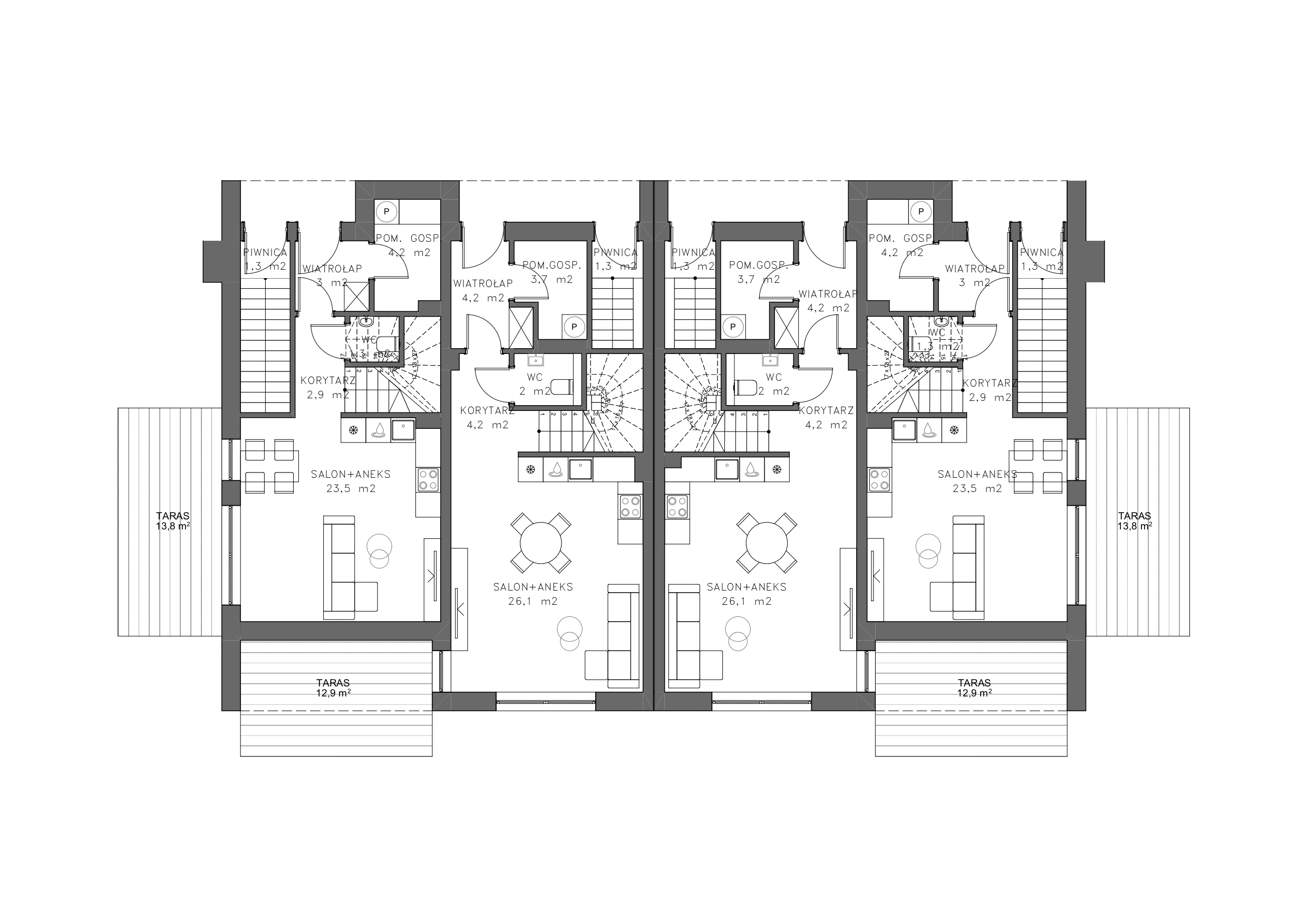
Każdy segment bliźniaka mieści dwa niezależne lokale mieszkalne, zaprojektowane z myślą o maksymalnej funkcjonalności. Na parterze znajduje się otwarta strefa dzienna z salonem, kuchnią i jadalnią, z bezpośrednim wyjściem na taras. Na piętrze ulokowano strefę nocną z sypialniami i łazienką. Każde mieszkanie posiada dodatkowo piwnicę z pomieszczeniami technicznymi i gospodarczymi. Duże przeszklenia zapewniają obfite naturalne światło i kontakt z otoczeniem. Ogromnym plusem budynku jest to, że każdy lokal posiada prywatny ogród. Zielone oddzielenia pomiędzy ogrodami gwarantują prywatność mimo zwartej zabudowy.

Największym wyzwaniem projektowym stało się opracowanie układów funkcjonalnych, które przy możliwie niewielkiej powierzchni oferują wrażenie przestronności, dostęp do naturalnego światła i poczucie prywatności. Każdy metr kwadratowy został starannie przemyślany – tak, by odpowiadał codziennym potrzebom rodzin, seniorów i osób samotnych. Ważnym aspektem było również zachowanie równowagi między prostotą a jakością – zastosowanie trwałych, estetycznych materiałów przy zachowaniu racjonalnych kosztów. Projekt ma udowadniać, że dobra architektura nie musi być luksusem – może być codziennością, dostępną dla każdego. Ten projekt to krok w stronę bardziej sprawiedliwego i zrównoważonego budownictwa, które nie stawia na pokaz, lecz na poczucie domu, wspólnoty i jakości życia. Jako architekci chcielibyśmy, by powstawało więcej takich projektów – bo kiedy państwo buduje na wysokim poziomie, w długofalowej perspektywie podnosi to również standard prywatnego rynku mieszkaniowego.